fbpx


LOADING

63 Chateauguay Street Russell, Ontario K0A 1W0

3 Bedroom 3 Bathroom
None Forced Air

$814,900

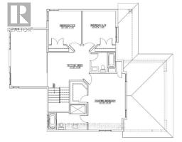
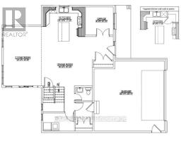
OPEN HOUSE February 7th 2:00pm-4:00pm AT 63 Chateauguay Street, Embrun. Introducing the Modern Maelle, a striking 2-storey home offering 1,936 square feet of contemporary living space designed with both function and flair. With 3 bedrooms, 2.5 bathrooms, and a 2-car garage, this home checks all the boxes for modern family living. Step inside and you're greeted by a den off the main entry ideal for a home office or creative space. Just off the garage, you'll find a convenient powder room and dedicated laundry area, keeping the main living areas clean and organized. The show-stopping living room features floor-to-ceiling windows that flood the space with natural light, creating an airy, uplifting atmosphere. A Loft on the second level offers a unique architectural detail, overlooking the living room below and adding a sense of openness and elegance. Upstairs, the primary suite offers a spacious walk-in closet and a private ensuite, creating the perfect personal retreat. Constructed by Leclair Homes, a trusted family-owned builder known for exceeding Canadian Builders Standards. Specializing in custom homes, two-storeys, bungalows, semi-detached, and now offering fully legal secondary dwellings with rental potential in mind, Leclair Homes brings detail-driven craftsmanship and long-term value to every project. (id:12481)

Property Details

MLS® Number X12688048
Property Type Vacant Land
Community Name 602 - Embrun

Building

BathroomTotal 3
BedroomsAboveGround 3
BedroomsTotal 3
Appliances Water Heater
BasementDevelopment Unfinished
BasementType Full (unfinished)
CoolingType None
HalfBathTotal 1
HeatingFuel Natural Gas
HeatingType Forced Air

Land

Acreage No
SizeDepth 91 M
SizeFrontage 10.9 M
SizeIrregular 10.9 X 91 M
SizeTotalText 10.9 X 91 M

Rooms

Level Type Dimensions
Second Level Primary Bedroom 4.57 m x 3.66 m
Second Level Bedroom 2 3.66 m x 3.05 m
Second Level Bedroom 3 3.66 m x 3.05 m
Main Level Kitchen 3.66 m x 3.05 m
Main Level Living Room 6.1 m x 4.88 m
Main Level Dining Room 3.66 m x 3.05 m

Utilities

Cable Available
Electricity Installed
Sewer Installed

https://www.realtor.ca/real-estate/29241572/63-chateauguay-street-russell-602-embrun

Contact Us

Get in touch with us for more information!


Phil Spoelstra
Broker of Record

(519) 870-7325
(519) 667-1958
www.farmontario.com

RE/MAX Centre City Phil Spoelstra Realty, Brokerage
34 Grandview Crescent
London, Ontario N6K 2Y2

(519) 667-1800
(519) 667-1958
www.farmontario.com

Ron Steenbergen
Broker

(226) 234-8239
(519) 667-1958
www.farmontario.com/

RE/MAX Centre City Realty Inc., Brokerage
675 Adelaide Street North
London, Ontario N5Y 2L4

(519) 667-1800
(519) 667-1958
www.centrecityrealty.com