fbpx


LOADING

439 Alice Avenue Kitchener, Ontario N2M 2A3

$514,900

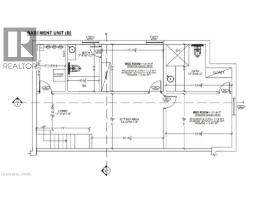
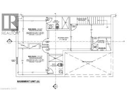
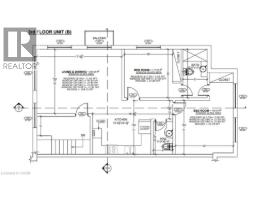
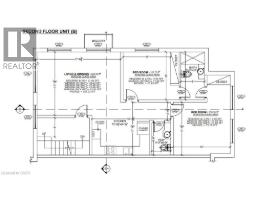
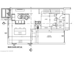
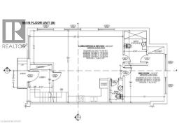
6 UNITS POSSIBLE HERE AS 2 x TRIPLEXES. Approved by the City of Kitchener. Attention developers and investors! 6 units possible here. Redevelopment site for 2 triplex's (built as 2 x semi-detached with 3 units in each – see photo gallery for conceptual rendering). Plans attached as supplement documents. Existing structure is best to be ripped down. This property is brimming with potential—pre-approved by the City of Kitchener for a triplex redevelopment. Situated on a large lot in the heart of Kitchener. The existing home currently offers 3 bedrooms and 1 bathroom, providing a solid foundation for renovation or expansion. Conveniently located near public transit, the LRT, Google, Victoria Park, shopping, and other key amenities, this property presents an incredible opportunity for those looking to invest or undertake a full home renovation. (id:12481)

Property Details

MLS® Number 40809360
Property Type Vacant Land
AmenitiesNearBy Hospital

Building

BasementType None
UtilityWater Municipal Water

Land

Acreage No
LandAmenities Hospital
Sewer Municipal Sewage System
SizeFrontage 55 Ft
SizeTotalText Under 1/2 Acre
ZoningDescription R2b

https://www.realtor.ca/real-estate/29422965/439-alice-avenue-kitchener

Contact Us

Get in touch with us for more information!


Phil Spoelstra
Broker of Record

(519) 870-7325
(519) 667-1958
www.farmontario.com

RE/MAX Centre City Phil Spoelstra Realty, Brokerage
34 Grandview Crescent
London, Ontario N6K 2Y2

(519) 667-1800
(519) 667-1958
www.farmontario.com

Ron Steenbergen
Broker

(226) 234-8239
(519) 667-1958
www.farmontario.com/

RE/MAX Centre City Realty Inc., Brokerage
675 Adelaide Street North
London, Ontario N5Y 2L4

(519) 667-1800
(519) 667-1958
www.centrecityrealty.com